Six Years, £800,000, and Still No Beehive: Why Burgess Hill Needs Change Monday, 7 April, 2025 By Tobias Parker – Conservative Candidate for Franklands Ward For over half a decade, the people of Burgess Hill have been promised a new community arts and events venue— The Beehive. It was billed as a cultural cornerstone for the town, a modern replacement for Martlets Hall, and a sign of progress. Instead, six years later, we’re left with an empty field, spiralling costs, and more questions... Opinions
Kristy Adams - Response to spring budget 29th March 2025 Growth stalling, tax burden up and business suffer plus welfare cuts - Labour Party disaster. When political ideology overtakes serving the people who vote... Opinions
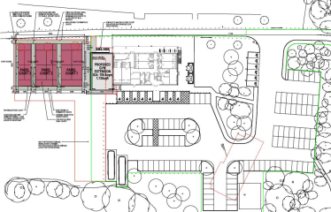
Haywards Heath Rugby Club Secures Planning Permission for New Facilities 23rd September 2024 On the 12th of September 2024, Haywards Heath Rugby Club (HHRFC) was unanimously granted planning permission to build three new Padel Tennis courts, a gymnasium... Local News
Kristy Adams Reflects on Mid Sussex Election Results and Campaign Achievements 28th July 2024 Kristy Adams, the Conservative candidate for Mid Sussex, came second in July’s general election. In a social media post following the election results, Kristy... Local News
Mid Sussex Conservatives Congratulate New MP Alison Bennett and Raise Concerns About Dual Roles 7th July 2024 The Mid Sussex Conservatives recently reached out to Alison Bennett to congratulate the new Mid Sussex MP on her election victory. The Liberal Democrat’s win... Local News
PM Rishi Sunak Unveils Historic £8.3 Billion Investment for Road Infrastructure 6th December 2023 In a joint declaration, Prime Minister Rishi Sunak and Transport Secretary Mark Harper have revealed a groundbreaking commitment of £8.3 billion to fortify the... Articles
Championing high streets and small businesses 1st December 2023 Running a small business provides opportunities and challenges. Kristy's business is in the building industry providing architectural plans for builders and... Local News
Protecting our green spaces and environment 11th November 2023 Green spaces are vital for our mental and physical health. Research from Natural England says, ‘we could save £2.1 billion in health costs each year if everyone... Local News
Listen to our Parliamentary Conservative Candidate Kristy Adams 2nd October 2023 Listen to our local Parliamentary Conservative Candidate Kristy Adams Who is out and about in Burgess Hill, Haywards Heath, Claire Hall speaking about food... Local News
No to Cuck-Stye public consultation 20th and 23rd September 2023 18th September 2023 No to Cuck-stye A Public Consultation has been arranged for the 20th and 23rd September at the Ansty Village Hall commencing at 10.00am on both days The... Local News
Read the Queen's Coronavirus address in full 6th April 2020 The Queen speaks to the nation about the challenges we are facing as a country in the weeks ahead. National News
Boris Johnson invites Party leaders to come together to tackle Coronavirus 4th April 2020 Boris Johnson has written to all leaders of opposition parties to invite them to work together at this moment of national emergency. National News
Party Co-Chairman Amanda Milling responds to Labour leadership election result 4th April 2020 Amanda Milling responds to Keir Starmer's election as leader of the Labour Party. National News
The Prime Minister's letter on Coronavirus: Stay at home to protect the NHS and save lives. 30th March 2020 Read the Prime Minister’s guidance everyone should follow and the measures the government has put in place to fight Coronavirus. National News
The Government's Coronavirus support package for the self-employed 27th March 2020 The Chancellor has announced a new Self-Employed Income Support Scheme – helping many of our country’s self-employed workers. National News
Your NHS needs you – how to become an NHS Volunteer Responder 25th March 2020 The NHS has issued a call for volunteers to support the 1.5 million extremely vulnerable people in our society. Here’s how to take part. National News