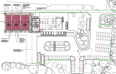
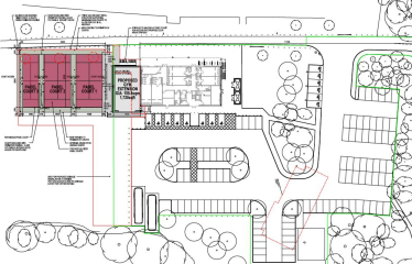
Six Years, £800,000, and Still No Beehive: Why Burgess Hill Needs Change Monday, 7 April, 2025 By Tobias Parker – Conservative Candidate for Franklands Ward For over half a decade, the people of Burgess Hill have been promised a new community arts and events venue— The Beehive. It was billed as a cultural cornerstone for the town, a modern replacement for Martlets Hall, and a sign of progress. Instead, six years later, we’re left with an empty field, spiralling costs, and more questions... Opinions
Kristy Adams - Response to spring budget 29th March 2025 Growth stalling, tax burden up and business suffer plus welfare cuts - Labour Party disaster. When political ideology overtakes serving the people who vote... Opinions
Haywards Heath Rugby Club Secures Planning Permission for New Facilities 23rd September 2024 On the 12th of September 2024, Haywards Heath Rugby Club (HHRFC) was unanimously granted planning permission to build three new Padel Tennis courts, a gymnasium... Local News
Kristy Adams Reflects on Mid Sussex Election Results and Campaign Achievements 28th July 2024 Kristy Adams, the Conservative candidate for Mid Sussex, came second in July’s general election. In a social media post following the election results, Kristy... Local News
Mid Sussex Conservatives Congratulate New MP Alison Bennett and Raise Concerns About Dual Roles 7th July 2024 The Mid Sussex Conservatives recently reached out to Alison Bennett to congratulate the new Mid Sussex MP on her election victory. The Liberal Democrat’s win... Local News
PM Rishi Sunak Unveils Historic £8.3 Billion Investment for Road Infrastructure 6th December 2023 In a joint declaration, Prime Minister Rishi Sunak and Transport Secretary Mark Harper have revealed a groundbreaking commitment of £8.3 billion to fortify the... Articles
Championing high streets and small businesses 1st December 2023 Running a small business provides opportunities and challenges. Kristy's business is in the building industry providing architectural plans for builders and... Local News
Protecting our green spaces and environment 11th November 2023 Green spaces are vital for our mental and physical health. Research from Natural England says, ‘we could save £2.1 billion in health costs each year if everyone... Local News
Listen to our Parliamentary Conservative Candidate Kristy Adams 2nd October 2023 Listen to our local Parliamentary Conservative Candidate Kristy Adams Who is out and about in Burgess Hill, Haywards Heath, Claire Hall speaking about food... Local News
No to Cuck-Stye public consultation 20th and 23rd September 2023 18th September 2023 No to Cuck-stye A Public Consultation has been arranged for the 20th and 23rd September at the Ansty Village Hall commencing at 10.00am on both days The... Local News
Kemi gives Keynote Defence Speech 11th April 2026 We must force the government to confront reality National News
Starmer caves on Chagos Surrender Deal 10th April 2026 After months of campaigning, Conservatives help force U-turn on Starmer’s Chagos deal National News
New Conservative Broadcast: Cut Britain's Bills 8th April 2026 In our latest Party Election Broadcast Kemi outlines how to cut Britain's bills... National News
Grooming Gangs Inquiry Strengthened 1st April 2026 Working together, we have once again forced the government to change course and putting victims first. National News
Conservatives Publish “Get Britain Drilling” Bill 31st March 2026 In the middle of an energy crisis drilling our own oil is about energy, financial and national security. National News
Labour block North Sea Oil Drilling 26th March 2026 Because of Ed Miliband Britain is poorer and thousands of jobs are being lost. National News