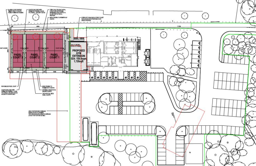
On the 12th of September 2024, Haywards Heath Rugby Club (HHRFC) was unanimously granted planning permission to build three new Padel Tennis courts, a gymnasium facility, and an extended roof terrace to their clubhouse. This significant development at Whitemans Green will enhance local sports facilities and benefit the wider community.
The project has been strongly supported by local Conservative District Councillors and other key stakeholders. Special thanks go to Malcolm Avery, Councillor for Cuckfield, Ansty, and Bolney, who voiced his full backing during the planning process. His advocacy underscored the community-wide benefits of the proposal, which has been years in the making.
Mims Davies,local Mp , was instrumental in securing a £250,000 contribution from the Levelling Up fund, closing any shortfalls in financing and ensuring that the project could move forward without delays. Their leadership, alongside support from the club’s committee, highlighted the effective teamwork behind the scenes.
Overview of the New Facilities:
The newly approved plans will transform the existing clubhouse into a state-of-the-art community sports hub. The three Padel Tennis courts will introduce a fast-growing sport to the area, offering opportunities for both new and experienced players. Padel tennis, which blends elements of tennis and squash, has been rapidly gaining popularity due to its accessibility for all ages and abilities.
In addition to the tennis courts, the new gymnasium will provide high-quality fitness facilities for both club members and the public, helping to promote health and wellness in the community. The expanded roof terrace will serve as a social space, allowing spectators to enjoy panoramic views of the matches while providing a venue for club events and community gatherings.
The developments will include adjustments to the vehicular access via Whitemans Green and improvements to the club’s car parking and servicing arrangements. The enhanced access will make the facilities more accessible to a wider range of users, ensuring ease of use for the community.
This scheme represents a major investment in the local sports infrastructure and will be an invaluable asset for the district.
