Six Years, £800,000, and Still No Beehive: Why Burgess Hill Needs Change Monday, 7 April, 2025 By Tobias Parker – Conservative Candidate for Franklands Ward For over half a decade, the people of Burgess Hill have been promised a new community arts and events venue— The Beehive. It was billed as a cultural cornerstone for the town, a modern replacement for Martlets Hall, and a sign of progress. Instead, six years later, we’re left with an empty field, spiralling costs, and more questions... Opinions
Kristy Adams - Response to spring budget 29th March 2025 Growth stalling, tax burden up and business suffer plus welfare cuts - Labour Party disaster. When political ideology overtakes serving the people who vote... Opinions
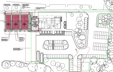
Haywards Heath Rugby Club Secures Planning Permission for New Facilities 23rd September 2024 On the 12th of September 2024, Haywards Heath Rugby Club (HHRFC) was unanimously granted planning permission to build three new Padel Tennis courts, a gymnasium... Local News
Kristy Adams Reflects on Mid Sussex Election Results and Campaign Achievements 28th July 2024 Kristy Adams, the Conservative candidate for Mid Sussex, came second in July’s general election. In a social media post following the election results, Kristy... Local News
Mid Sussex Conservatives Congratulate New MP Alison Bennett and Raise Concerns About Dual Roles 7th July 2024 The Mid Sussex Conservatives recently reached out to Alison Bennett to congratulate the new Mid Sussex MP on her election victory. The Liberal Democrat’s win... Local News
PM Rishi Sunak Unveils Historic £8.3 Billion Investment for Road Infrastructure 6th December 2023 In a joint declaration, Prime Minister Rishi Sunak and Transport Secretary Mark Harper have revealed a groundbreaking commitment of £8.3 billion to fortify the... Articles
Championing high streets and small businesses 1st December 2023 Running a small business provides opportunities and challenges. Kristy's business is in the building industry providing architectural plans for builders and... Local News
Protecting our green spaces and environment 11th November 2023 Green spaces are vital for our mental and physical health. Research from Natural England says, ‘we could save £2.1 billion in health costs each year if everyone... Local News
Listen to our Parliamentary Conservative Candidate Kristy Adams 2nd October 2023 Listen to our local Parliamentary Conservative Candidate Kristy Adams Who is out and about in Burgess Hill, Haywards Heath, Claire Hall speaking about food... Local News
No to Cuck-Stye public consultation 20th and 23rd September 2023 18th September 2023 No to Cuck-stye A Public Consultation has been arranged for the 20th and 23rd September at the Ansty Village Hall commencing at 10.00am on both days The... Local News
Our largest boost to our Nation’s Defence in a Generation 19th November 2020 We’re delivering a funding boost of over £24 billion for our nation’s defence. Ensuring we keep our nation safe from the evolving international threats we face. National News
Our Ten Point Plan for a Green Industrial Revolution 18th November 2020 Today, the Prime Minister has outlined his ten-point plan to bring about a green industrial revolution, creating 250,000 jobs and helping us to build back... National News
More than 19,000 jobs created by Kickstart Scheme 12th November 2020 Today the Chancellor has confirmed that more than 19,000 job placements have been created by our Kickstart Scheme so far – with tens of thousands more expected... National News
The Prime Minister's Statement on the COVID Vaccine in Full 9th November 2020 Read in full the Prime Minister's statement on mass testing progress, the Pfizer/BioNTech Vaccine and more. National News
4 Ways this Government is Supporting Businesses this Winter 6th November 2020 Throughout this pandemic, our priority has been clear: to protect lives and livelihoods. The Government’s announcements today will support businesses this... National News
The Prime Minister's COVID-19 Update in Full 5th November 2020 The Prime Minister spoke to the public on the first day of lockdown on our plans to tackle the coronavirus. Stay at home. Protect the NHS. Save Lives. National News